
摘要:皮托泵在小流量超高扬程领域的优势明显。为什么我国某厂进口了落后旋喷泵,并误导甘工大旋喷泵叶轮的研究走了弯路?是因为其专利名称并不写“旋喷泵或旋壳泵"。
简述了皮托泵的发展历史、结构与工作原理。简介了处于皮托泵世界领先水平的研发公司和制造商。从叶轮和集流管扬程的正确分配,叶轮、集流管和转鼓的水力设计四个方面,介绍了国内外皮托泵水力性能的进展情况。
从集流管径向力的平衡、转鼓的轴向力,轴承型式与组合两方面,指出了国内外皮托泵在机械结构上的差距。提出了为发挥皮托泵在超高扬程领域的优势,急待解决的技术难题:中流量和大流量时的抗汽蚀性能很差;充滿液体的悬臂转鼓在高转速下运行的故障率较高。
0. 前言
在小流量高扬程极低比转速领域,皮托泵(旋喷泵或旋壳泵)的性能优于胜达因高速泵,更优于往复泵,扬程愈高,优势愈突出。甘工大是我国培养水机专业人材的摇篮“水机专业黄浦军校”,从1993年开始,在我国最早进行了旋喷泵的研究,为什么会受到某厂进口落后旋喷泵的误导,走了多年弯路?
为什么研究进展缓慢?与美国皮托泵的性能相比差距大?本文用实例进行了分析,找出了原因。直到2005年,旋喷泵核心件叶轮仍采用传统小流量离心泵的长短叶片,2008年"旋喷泵研究开发现状与展望"综述性文章,无叶轮内容,可能意识到以前的观点不妥,转鼓部分也未涉及。
其实,早在五十多年前,美国L.K.William为了解决皮托泵流道的扩散度大,会产生脱流和二次回流,降低泵效率,反向思维,将小流量离心泵的叶片部分改作为液体的流道,其余金属部分作为叶片,成为出口角为近90度的12条幅射状等断面流道,这种巧妙的构思于1965.4.12申请的美国专利在1968.5.21被授权,名称为“Centrifugal pump",公开了皮托泵叶轮和集流管的创新技术和15幅附图,奠定了当今皮托泵技术的基础。
之所以我国高校博导和研究生论文的参考文献中,很少有旋喷泵国外专利,源于专利名称并不写“旋喷泵或旋壳泵",2019.5.7皮托泵最新的美国专利名称为“Pressure reducing rotor assembly for a pump",当然检索不到有价值的国外旋喷泵专利文献。
另外,我国进口正宗皮托泵厂商的完工资料和工业运行情况,高校和制造厂也不太了解,文章和研究生论文上旋喷泵装配图与实际产品有很大区别,十多年不变,也造成转鼓CFD数值模拟基础的转鼓结构图失误[14]。由于国外皮托管泵资料缺乏,造成只能研制扬程不高的低端品种,效率差距更大,结构也不太合理。
撰写本文的目的是,针对我国旋喷泵研究和制造权威单位,在叶轮、集流管和转鼓的水力设计以及机械设计方面存在的缺陷,奉献十多年来进口美国皮托泵工作中收集的资料和工程经验,希望对我国旋喷泵的研究、产品设计和工业应用有所启迪,以便尽快缩小与美国Envirotech泵公司还存在的很大差距。
1. 皮托泵的发展历史、结构与工作原理简述
1-1 皮托泵诞生的回顾
皮托管是由法国水利工程师亨利.皮托(Henri.Pitot)于1732年发明的,用于测量河水流速。1923年,F.W.Krogh借鉴皮托管将流速转化为压力的原理,首创了简易的皮托泵。早在1938年,应二战火箭燃料泵的急需,德国和英国开始对小流量高扬程泵进行研制,因多级离心泵的级数太多, 可靠性差,而往复泵高压下压力脉动强烈,且易损件又多,均被否定。
研制人员当时提出了两种全新构思的离心泵[6]。Barske 博士首先提出了高速、开式叶轮、部分流型离心泵方案,避免了以前只是简单将常规离心泵高速化出现的种种故障。另一全新构思是将叶轮与泵壳联为一体同步回转,当时称为旋转壳体泵(Rotating Casing pump) 的单级离心泵。
如所周知,离心泵的基本原理是叶轮回转获得动能,再将动能转化为压力能。小流量超高扬程离心泵的效率之所以低,关键是叶轮的圆盘摩擦损失太大,此项损失与叶轮直径的五次方成正比,与转速的三次方成正比,如果让叶轮与泵壳同步回转,液体在获得动能的过程中的圆盘摩擦损失就几乎为零。
F.W.Krogh首创的简易皮托泵方案,采用集流管将动能转化为压力能。但研制成动的这种全新概念离心泵的流量小于1.1m3/h,且效率低于高速部分流泵,因此未被军方接受。上世纪六十年代,由于理论研究和制造技术有了突破,旋壳泵又死灰复燃,美国开始研制这种全新概念离心泵,并改称为皮托泵(Pitot pump)。出于技术保密的需要,皮托泵的美国专利名称用离心泵。
1-2 皮托泵的结构与工作原理
如图1美国Kobe公司皮托泵的剖面图所示,转子部件两端支撑的结构是早期皮托泵的基本形式,这是因为转子部件重量加上转鼓和叶轮充端液体后总重量很重,泵两端支撑的皮托泵运转平稳。

图1 美国Kobe公司转鼓和叶轮两端支撑的皮托泵剖面图
从图1看出,泵右端的机械密封与滚动轴承之间的隔离密封一旦失效,机械密封的泄漏液进入轴承,轴承很快损坏,整台泵必须大修。
上世紀七十年代后期,美国Envirotech Pumpsystems公司发明的皮托泵改成如图2所示的转鼓和叶轮悬臂的结构,机械密封在转鼓的背面,即使机械密封出现泄漏,从转鼓前面的排液口引出,成为目前国内外旋喷泵(皮托泵)的通用结构形式。

图2 美国Envirotech Pumpsystems公司转鼓和叶轮悬臂的皮托泵剖面图
皮托泵的三个核心件是转鼓盖(叶轮)、集流管、转鼓。液体从进液管进入叶轮,因叶轮高速回转获得动能和扬程,高速液体进入转鼓的外围,部分高速液体从位于转鼓最外围处集流管的入口进入。
因集流管的横截面积逐步扩大,液体流速逐步降低,从而将液体的动能转化为扬程,最后从出液管排除高压液体。由于转鼓盖与转鼓是联为一体同步回转,因此,液体在叶轮中获得动能的过程中,无圆盘摩擦损失。集流管的外部形状为翼型断面,使绕流阻力最小。
2. 皮托泵世界领先水平的研发公司和制造商的概况
掌握这些必要的技术经济信息,避免出现用外汇进口落后的旋喷泵,也避免了旋喷泵研究单位受到进口的落后旋喷泵结构的误导而走了弯路。
1991年,我公司参加工程设计劳务出口的高工带回了美国皮托泵资料,我们对其实际产品的结构和技术数据有了进一步了解,并找到了搜索皮托泵资料的渠道。
通过对国外泵会议皮托泵论文和几十项美国专利说明书的分析,认识到在小流量高扬程工况,皮托泵与高速离心泵或多级离心泵相比,优势明显。于是我公司在一些工程项目上逐步采用了美国Envirotech公司不同型号和规格的一批皮托泵,后来证实,该公司的皮托管泵产品处于皮托泵的世界领先水平。
从美国专利局网站上获知,上世纪八十年代初期以前,世界上皮托泵专利权人主要是美国Kobe公司,七十年代末开始,美国Envirotech 公司的专利产品很快垄断了皮托泵市场。
一直到去年皮托泵的专利说明书上,发明人是Envirotech Pumpsystems公司的Bryce Neilson,专利权人为Envirotech Pumpsystems, Inc.。该公司位于美国犹他州的首府著名的盐湖城(Salt Lake City, UT) ,专注于皮托泵的研究和制造。
据百度网上资料介绍,德国、荷兰STERLIN公司和日本HONDA KIKO公司的皮托泵产品,均属于仿制Envirotech Pumpsystems公司专利已到期的产品,而新开发已进入市场的新系列产品受专利保护,尚未发现被仿制。
英国威尔集团公司看好该公司研制皮托泵的实力,收购了该公司以后,在盐湖城注册了威尔特种泵公司 (Weir Specialty Pumps,以下缩写为WSP公司),负责投标和签合同等商务工作,研发、产品设计和制造仍由Envirotech Pumpsystems公司承担。现用一项工程实例 (重庆建峰化工公司日产1500吨合成氨装置CO2汽提塔回流泵评标) 来说明。
表1. 美国皮托泵与胜达因高速泵的技术经济对比表(2007年评标技术数据)[7]
(流量27.4 m3/h,扬程411m,介质比重0.992,材料316SS)

注:
(1).按电费0.48元/度,年运行0.8万小时。皮托泵年节电费:(61.3-4,7.6)KW×0.8万小时/年×0.48元/度= 5.3万元/年
(2).开标价为CIF上海港,已含开车备件费、两年备件费、关税10%、增值税17%。
表1的工程实例说明:
(a) 针对上表的流量和扬程,皮托泵技术性能明显优于高速泵。
(b) 两台美国皮托泵的开标价比日本高速泵的开标价低72万人民币。
表2. 皮托泵与高速泵的性能对比[7]

从表2可见,在小流量和超低比转数时,皮托泵的效率比高速泵高得多,达到相同参数,皮托泵的转速低得多,皮托泵不加诱导轮就能达到较低的必需汽蚀余量。
此外,皮托泵的最小连续流量很小,可减少泵最小流量保护回流的功率损失。但在大流量和扬程不高时,皮托泵的效率比高速泵低, 但中流量和大流量时抗汽蚀性能差,NPSHr大(表中未写出,本文后面用性能曲线图21来说明)。
3. 国内外皮托泵水力性能的进展情况
3-1 叶轮和集流管扬程的分配,是皮托泵水力设计的重要问题
叶轮、集流管和转鼓是皮托泵的三个核心件,国内发表的旋喷泵研究论文,大多是针对一个或两个件,旋喷泵设计条件的扬程如何正确分配到叶轮和集流管上,国内发表的论文中还少见,还有的论文和中国专利提出了在转鼓内腔设置叶片,此观点不可取。
F.Korkowski和L.Glassburn. 2005年在加拿大卡尔加里市召开的国际泵会议上,演示了”小流量高扬程泵的选择”PPT的43/54页面,介绍了WSP公司皮托泵工作原理图,提出了叶轮和集流管各提供泵扬程一半的扬程分配原则。此扬程的分配原则源于美国WSP公司泵设计与研发中心主任T.L.Angle等三人在第22届国际泵会议上发表的”一种新颖的高压泵系统”论文的”附录A--皮托泵的水力原理”。

3-2 叶轮的水力设计
“旋转喷射泵主要过流部件设计研究”文章[3]引用传统小流量小流量心泵的设计方法,因小流量工况下流道扩散,使流道内产生附面层分离而引起的流动失速;二次流是小流量工况下叶轮内的轴向旋涡作用比较大,使叶轮工作面、背面相对速度相差大而引起的液体倒流。
由于脱流和二次流,泵的水力损失增大,工作性能不稳定,扬程和效率都大大降低。因此,在叶轮流道容易产生回流和脱流的部位增设短叶片,则可改善叶轮流道内的速度分布,有效阻止附面层分离和脱流产生,图4为长、短叶片均为后弯的S形复合叶轮。
此设计原则来源于1999年实测某厂进口国外旋喷泵(Q=12.5m3/h、H=250m、n=4500r/min)的叶轮(8长+ 8短叶片)。图4~7为中国旋喷泵和美国皮托泵专利的各两张叶轮剖面图。

图4~7 中国旋喷泵和美国皮托泵专利的各两张叶轮剖面图
从后三张叶轮剖面图可以看出,是将传统小流量离心泵的叶片部分改作为液体的流道,其余金属部分作为叶片,成为出角为80~90度的幅射状等断面流道,完全避免了脱流和二次流,制造也更容易。
3-3 集流管的水力设计
国内对集流管的研究论文很多,需要补充集流管各断面的横截面积如何扩大?如何减轻高速液流进入集流管的第一个90度转弯处的涡流和对面的脱流、回流,以便使速度能转化为压力能的效率高,需要开发出先进的设计计算程序,这是提高旋喷泵效率的关键,也是缩小我国旋喷泵效率和WSP公司差距的核心工作。
兰州理工大为四川机械设计研究院研制的一台Q = 22 m3/h、H = 240 m的旋喷泵,泵的效率高达42%[4]。与多级离心泵和胜达因高速泵相比,效率42%的确是高水平。但是WSP公司2002年的2200-S600型产品的性能曲线图, 相同Q和H的效率从42%提高到65%,高了23个百分点,可见我国研制的旋喷泵还有相当大的发展空间,还需努力[4]。

图8 WSP公司2200-S600型皮托泵产品的性能曲线图

图9 WSP公司2200-S375型皮托泵产品的性能曲线图
请注意图8~9性能曲线图的如下五条技术信息:
(1).皮托泵属于离心泵,符合离心泵的相似定律,即流量与转速的一次方成正比、扬程与转速的平方成正比、轴功率与转速的立方成正比;
(2).皮托泵的最小连续流量Qmin很小,最小连续流量线是斜线,转速降低,Qmin更小;
(3).性能曲线图上提供了泵最小流量保护回路上的限流孔板的直径;
(4).扬程曲线有驼峰,泵的工作点应在驼峰的右边;
(5).中流量和大流量时抗汽蚀性能很差,NPSHr大。


图13的专利是美国制造大型压缩机和汽轮机的知名公司Dresser (德莱赛公司)发明的,该公司可能发现了皮托泵在高扬程领域的市场前景,拟涉入此领域,但毕竟实际经验不足,在集流管进口转弯处加两片分流叶片,以便消消旋涡与回流,是脱离实际的方案,因为国外皮托泵的集流管进口内径最小6mm,最大15mm,连一片分流叶片都未加。图14的集流管专利,同样失误,未能授权。
3-4 转鼓的水力设计
转鼓的作用:将叶轮出口的高速液流以尽量小的扬程损失引入集流管进口, 转鼓并不能用于增加扬程,有论文和中国专利说明书采用在转鼓内腔设置叶片的结构不可行。为减小转鼓内腔表面的滑移损失, 转鼓腔的内表面进行了抛光。
WSP公司在技术交流时讲过,转鼓底部有两个大圆弧,这是因为叶轮出口排出的高速液体,只有部分进入集流管,大部分在转鼓内腔中循环,具有与胜达因高速部分流泵相似的特点,转鼓内腔的型线如何设计,对减少液体在腔内循环时的能量损失有较大关系。
兰州理工大学刘宜教授等人”旋喷泵转子腔的结构优化及数值模拟计算”文章指出:国内对旋喷泵研究多数集中于泵叶轮、集流管设计及应用方面,对转子腔结构研究得很少[14],这也是国内旋喷泵效率较低的主要原因之一。(建议将"转子"改为"转鼓",因为"转子"是指叶轮、转鼓、轴、轴承等组装在一起的转动部件)。
文中的"转子腔的外缘增加凸棱"令人费解,仔细研读后才明白,作者是为了增加转鼓腔外缘处的速度,集流管的顶部半径略大于转鼓腔的内半径,因此在转鼓腔的圆筒内壁开凹槽,为了不削弱转鼓圆筒的强度,在凹槽相应位置的圆筒外壁增加凸棱,但文中和转鼓结构图上未交待。
作者未注意到,转鼓与叶轮是用外径大又厚的法兰连接,即使加凹槽也不会削弱转鼓的强度,转鼓的外壁无需有凸棱。这是受到国内旋喷泵文章、研究生论文和专利说明书上的“旋喷泵结构简图”上,未表示出转鼓与叶轮是用外径大的厚法兰连接的影响。
这张旋喷泵结构简图十多年不变,还存在轴承型式不能用于泵进口有压力的工况,建议以后参照本文提供的WSP公司皮托泵实际产品的泵剖面图,重新绘制“旋喷泵结构简图”。

图15是参考文献[14] CFD数值模拟所用的转子腔的结构图(原为图1 ),是一个平底,与图16.WSP公司皮托泵转鼓零件图相比,差异很大,WSP公司转鼓底部有两个大圆弧,叶轮内盖板有有一个小圆弧,这是因为叶轮出口排出的高速液体,只有部分液体进入集流管,大部分在转鼓内腔中循环,具有胜达因高速部分流泵的特点。
WSP公司在技术交流时讲,转鼓内腔的型线如何设计,对减少液体在腔内循环时的能量损失有较大关系。此结构的转鼓如用于双集流管,转鼓腔的圆筒内壁不必开凹槽,否则双集流管装不进去。
CFD数值模拟技术,具有边界参数调整方便、成本低廉、实验周期很短等优势,被国内外广泛采用。采用CFD技术的科研成果要有实用价值,必须有两个步骤:
其一,在利用解析方法研究复杂的流体流动问题,对物理现象进行简化处理时,原始条件要正确,关键条件不可遗漏,抽象出来的简化模型与工程实际产品不可差异较大。
其二,必须有实验验证,此实验条件的内容应与工业实际产品的接近,如果CFD解析研究结果,仅仅用泵的性能试验来验证还不够,如缺乏流场和压力的定量分布,可能会影响其学术价值及应用效果。
流场信息的测量是泵、水轮机等流场研究中的一项重要内容,采用粒子图像测速仪(PIV, Particle Image Velocimetr),在流场中布撒示踪粒子,应用现代激光测试技术,可以非接触地获得瞬间、全流场的流动信息,现已成为现代流场测试技术之一,并且得到了广泛应用。
该技术对于旋喷泵转鼓和集流管内部流场状态、流速和压力分布的研究极为有益。建议借鉴国内一些高校,如大连理工大学、华北水利水电学院、西南石油大学[15]已有十年左右应用经验的这项新技术。
4. 国内外皮托泵在机械结构上的差距
4-1 皮托管径向力的平衡
国内外现有皮托泵普遍用单集流管,并且是悬臂支承,因为从转鼓轴线到转鼓外缘,液体压力与转鼓半径的二次方成正比分布,转鼓内腔外围的液体压力最高,单集流管受到液体向下径向力将下垂,造成叶轮轴线处内孔偏磨,内回流量加大,降低泵效率。
中海油惠州炼油分公司“喷射泵特点及其在加氢裂化装置的应用”一文[16],介绍了进口威尔公司高压注水泵的应用情况。该泵的型号为ROH S-375S(单集流管),文中认为没有不平衡的径向力,主要参数:设计流量19.8 m3/h、扬程1233 m、转速5812 rpm、电机功率135kW。
该泵运行的初期振动很大,用户又将泵的混凝土基础加深加大,管道支撑进行了加固,振动减轻。后来几年使用中,只要供水管道过滤器的定期清洗稍有放松,杂质在转子内腔的壁上逐渐积聚,振动又超标,必须拆泵、清洗转子和重装泵,维修工作量很大。
2017.5.31授权的 ”一种改进容积效率的旋喷泵及改进方法” 发明专利[17],为减少转子腔内液体从集流管水平段穿过叶轮的间隙处的泄漏,采用迷宫密封。
但迷宫密封是用于气体介质转动机械的轴端密封,是在轴和固定件之间有若干环形截流间隙与膨胀空腔,气体在迷宫中经多次压缩、膨胀和旋涡的热力学效应,使气体的压力降低,从而达到减少泄漏的目的,但对于体积与压力关系很小的液体,迷宫密封的效果很有限。该专利只是被动地去堵漏,而并未认识到问题的根源:
一是单集流管受到了液体向下径向力;
二是集流管悬臂安装。这两个因素造成集流管径向投影面受到液体径向力作用后,集流管水平段的悬臂端将下垂,造成叶轮轴线处内孔偏磨。

江苏大学为解决上述问题,提出了集流管两端支承代替悬臂安装的解决方案,申请了”一种集流管两端采用中心支承的旋壳泵”发明专利[17],图18是该发明专利申请说明书的旋壳泵剖面图。
该发明解决方案的失误是,在转鼓轴线处的鼓底上设置了集流管导轴承,导轴承16内侧腔是一个死区,液体不流动,不能带走滑动轴承的摩擦热,液体温度上升,黏度大幅下降,甚至汽化,因丧失润滑功能,导轴承干摩擦而损坏。此发明专利2013.2.20申请,2017.3.29被驳回。此发明专利也未认识到单集流管是造成叶轮中央孔单侧接触磨损的根源。
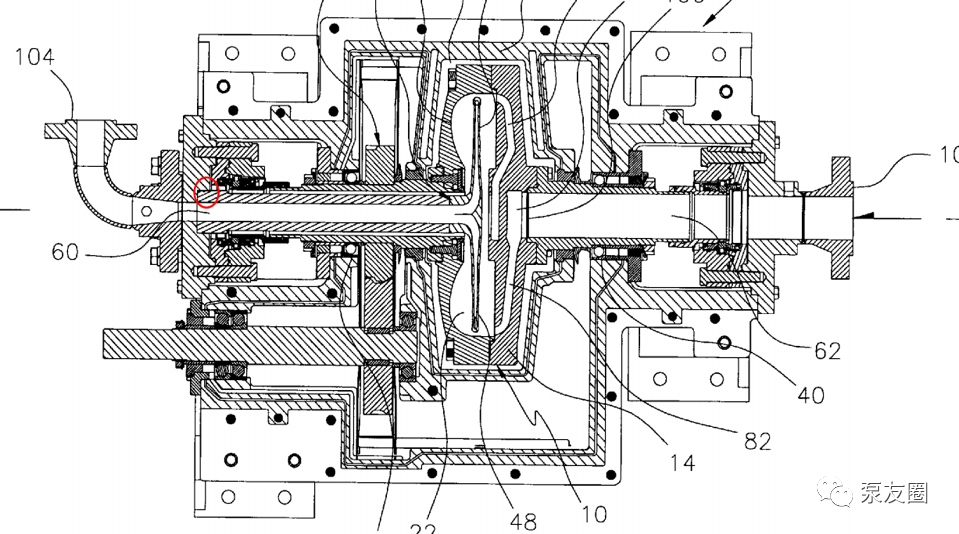
十多年来,国内旋喷泵文章、研究生论文和专利说明书上的“旋喷泵结构简图”上,集流管全部是单集流管。专利发明人和专利权人均为Envirotech Pumpsystems公司2019.5.7的美国专利采用双集流管[9],WSP公司最新系列皮托泵全部用双集流管。

图19 美国Envirotech Pumpsystems公司皮托泵剖面图,
笔者仔细研究了这项皮托泵的最新美国专利,发现还存在如下缺陷:
(1)用双集流管,径向力平衡,是成功的。但集流管仍然是悬臂安装,集流管水平段的端头与端盖配合长度很短(图上用红圆圈标出),如有制造误差,将降低运转稳定性;
(2)为解决现有悬臂式皮托泵的转鼓和叶轮充满液体后重量很大,用于高压、高转速工况时,故障率高的问题,该专利又回到早期皮托管泵的转子部件为双支撑的结构,如何严防两端滚动轴承进液的密封结构,该专利未涉及。
(3)皮托管水平段的端头与端盖配合处,遗漏了密封泵出口压力的O形圈,图上的红圆圈处。
4-2 转鼓的轴向力,轴承型式与组合。
国内很多旋喷泵文章和研究生论文章认为,旋喷泵转鼓中基本上无轴向力,因此一些旋喷泵专利说明书上泵剖面图的轴承型式不合理,现以国内旋喷泵研制最早,市场销售量国内领先的四川日机的一项较新的专利说明书泵剖面图为例,提出改进建议。

图20 四川日机旋喷泵剖面图,实用新型CN 2476668 Y,2002.2.13. [19]
旋喷泵设计者未注意到,转鼓所受到的轴向力高低,取决于泵的进口压力。图20的缺陷是,驱动端轴承为圆柱滾子轴承,不能承受轴向力,前轴承为深沟球轴承,承受充满液体较重转鼓的径向力后,轴承剩余能力只能承受较小的轴向力。
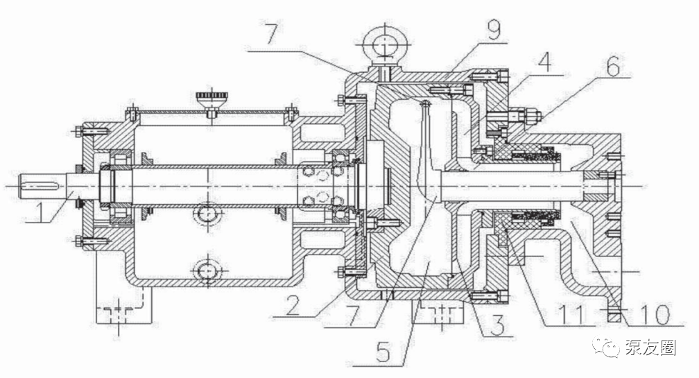
WSP公司各种系列皮托泵的标准设计是,驱动端轴承为一对背靠背角接触轴承,两轴承之间有隔离环,环上有孔,将润滑油引入外侧轴承,加隔离环增加了这对轴承的支承刚度。标准设计皮托泵的最高允许进口压力为14bar.G,WSP公司有一种独特的轴承组合形式,见图21。

图21 WSP公司高进口压力皮托泵驱动端用四个轴承的组合形式
为了承受泵的高进口压力产生的指向驱动端的轴向力,原来的轴承座不用改,仅在轴上多装两个外圈的大端向驱动端的角接触轴承,轴承外圈悬空,多装的这两个角接触轴承只承受轴向力,这样增加了承受轴向力的能力。
这种创新性很突出的轴承组合形式,国内外罕见,可以用在需承受高进口压力的其它型式泵上,如石化装置中,高进口压力OH2型循环泵。图上的”ROB“用于皮带传动,承受径向力。
5. 发挥皮托泵在超高扬程领域上的优势,急待解决的技术难题
5-1 中流量和大流量时的抗汽蚀性能很差
现以WSP公司ROH-D600型双集流管皮托泵的性能曲线图(图21)为例的说明,该型号泵最高效率点的参数为:流量100 m3/h、扬程1360 m、转速6321RPM、效率61%、NPSHr=23m;流量140 m3/h时的NPSHr高达40m。可见,皮托泵在大流量时的抗汽蚀性能很差,限制了皮托泵的使用范围。

图22 WSP公司ROH-D600型双集流管皮托泵性能曲线图
5-2 充滿液体的悬臂式转鼓在高转速下运行的故障率较高
因为皮托泵的转鼓和叶轮充满液体后重量很大,国内石化厂进口皮托泵,只要扬程超过1000米左右,运行时振动大,故障率高。国内有些旋喷泵的招标文件中,规定泵的转速不得超过3000 rpm,制约了旋喷泵(皮托泵)在高扬程和超高扬程领域上优势的发挥。
目前,旋喷泵(皮托泵)存在的这两项技术难题急待解决。
6. 结束语
皮托泵在小流量超高扬程领域的优势明显,美国皮托泵研制者为了技术保密,几十年来,皮托泵专利名称不写“旋喷泵或旋壳泵"。皮托泵的水力设计的专利也仅仅在上世纪六十年代才发现,本世纪国内外专利文献中不再出现。限于篇幅,本文仅介绍了部分有价值的皮托泵美国专利,并为我国旋喷泵研制者提供了搜索皮托泵资料的渠道。
本文针对我国旋喷泵研究和制造的权威单位,在叶轮、集流管和转鼓的水力设计以及机械设计方面还存在的缺陷,奉献十多年来进口美国皮托泵工作中收集的资料和工程经验,希望对我国旋喷泵的研究、产品设计和工业应用有所启迪,以便尽快缩小与美国Envirotech泵公司还存在的很大差距。
声明:文章转载自网络,本作品版权归原作者所有,仅供学习参考之用,禁止用于商业用途。若侵犯到您的权益,请及时告知,我们将立即删除!